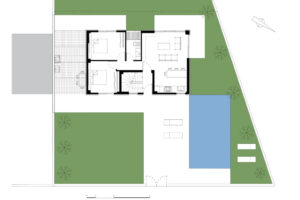
Seeking to get as close as possible to the issue of holiday residence on the Ionian mainland, we came up with a proposal of two autonomous holiday homes in a manageable prismatic volume. The two houses are developed vertically and there is also an attic. The building is located in the centre of the plot leaving wide green spaces on either side for play and other activities. While the observer is under the impression that he is looking at a large building, the building has a floor area of seventy-seven square metres (77), which makes it a small cottage. The open space has large green areas, paving and a swimming pool. The study plot is located close to the coastal front with views towards it and is cornered at the junction of two small country roads. This area does not have any local architecture of particular significance and comprises mainly small cottages and some catering outlets. It is characterised by low tourist development, tranquillity, open green spaces, small groves and a large coastline of free sandy beaches overlooking the Ionian Sea.
PROJECT: Holiday home in Kavafi Street
LOCATION: Kanali, Preveza, Greece
YEAR: 2023-2026
TYPE : Houses
RESEARCHER: Dimitris Molonis
STATIC STUDY: Thomas Tsolas
E/M DESIGN: Alexis Tyrologos


